お電話でのお問い合わせ
0544-26-5830
無料相談・お問合せ
TOP
売りたい方へ
買いたい方へ
お客様の声
会社概要
お知らせ
よくある質問
ゆずき不動産事務所
>
買いたい方へ
>
【NEW】宝町の家
【NEW】宝町の家
価格
1号棟:2,790万円/2号棟:3,090万円/3号棟:2,990万円/4号棟:3,090万円
間取り
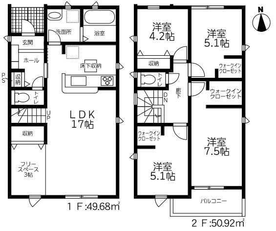
1号棟:4LDK/2号棟:5LDK/3号棟:5LDK/4号棟:5LDK
土地面積
1号棟:136.96㎡/2号棟:250.66㎡/3号棟:242.88㎡/4号棟:266.98㎡
建物面積
1号棟:100.60㎡/2号棟:105.99㎡/3号棟:112.61㎡/4号棟:115.51㎡
駐車場
2台~4台
販売戸数
全4棟
建物状況
建築中
完成時期
R8年3月下旬
引渡日
R8年4月下旬
所在地
富士宮市宝町676-2
構造
木造2階建て
学区
貴船小学校・第四中学校
物件のおすすめポイント
身延線「西富士宮」駅から徒歩7分。コンビニやスーパーも徒歩圏内にあり生活の利便性が大変利便性がよいエリアです。
周辺環境
身延線「西富士宮」駅 徒歩7分
マックスバリュ富士宮朝日町店 徒歩12分
セブンイレブン富士宮西町店 8分
貴船小学校 徒歩5分
第四中学校 徒歩13分
お問い合わせはこちらから
直接話したい
0544-26-5830
お気軽にお電話ください 受付時間/ 9:00~18:00
チャットで相談したい
LINE公式アカウント
ともだち登録することでお気軽にチャット感覚でお話しできます